侧开式圆拱形电动采光排烟天窗是一种常见的电动采光排烟天窗,可帮助建筑进行日常通风、自然采光,在危急时刻,还可发挥消防排烟功能。下面为大家介绍侧开式圆拱形电动采光排烟天窗的结构特点,并附上结构示意图。
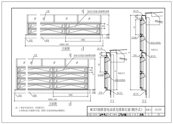
从外观结构看,侧开式圆拱形电动采光排烟天窗的外观为圆拱形,由弧形采光顶、弧形骨架、窗扇、窗体、端头、收边件、电控箱、电动推杆等结构组成。其中窗扇设置在侧立面,为上悬窗,既可设计为单层侧开窗,也可设计为多层侧开窗。此外,弧形板材和弧形骨架的结构强度大,能承受较大的外力荷载,如风雪荷载等。
从规格尺寸看,侧开圆拱型电动天窗的洞口宽度为2000mm、3000mm、4000mm、5000mm、6000mm,洞口长度为6000mm,单层侧开圆拱型天窗的窗体高度为1100mm-1714mm,多层侧开圆拱型天窗的窗体高度为1830mm-4350mm,多层侧开的窗体高度更高,体积更大。此处数据参考11cj33《通风采光天窗》图集。
若对侧开式圆拱形电动采光排烟天窗的结构存在疑问,欢迎咨询电动采光排烟天窗专业生产厂家麦克威!

MCW5型通风天窗(暗扣式)
MCW7型通风天窗(箱型骨架式)
C1XT三角形电动采光排烟天窗(下开式)
TC5型流线型通风天窗