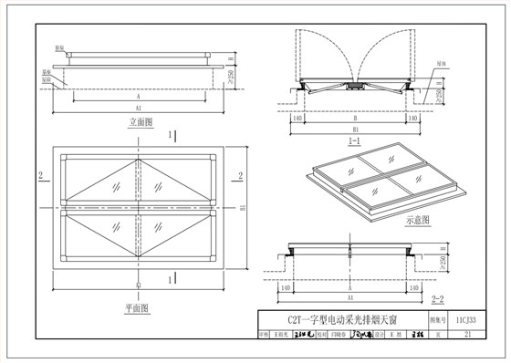
一字型电动采光排烟天窗的窗扇与安装面平行或呈6°夹角,窗体高度一般为135mm。从俯视角度观看,天窗为大写一字形,由电动推杆、窗扇、窗体等主要结构组成,开启角度可达90°,排烟效果好。
其示意图、立面图、平面图、剖面图可参考国标图集11CJ33《通风采光天窗》、09J621-2《电动采光排烟天窗》、21J621-1《天窗》、22CJ87-3《采光、通风、排烟天窗(三)》等图集,以上图集均可在本网站首页下载。

国标图集11CJ33主编单位结构防水技术(实用新型专利:ZL 2019 2 0682075.0)028-82630900
2023-04-24 17:54:07
其示意图、立面图、平面图、剖面图可参考国标图集11CJ33《通风采光天窗》、09J621-2《电动采光排烟天窗》、21J621-1《天窗》、22CJ87-3《采光、通风、排烟天窗(三)》等图集,以上图集均可在本网站首页下载。