四川麦克威通风设备有限公司
咨询热线:028-82630900
手机:13881905158
传真:028-82630433
邮箱:mcwell@qq.com
办公:成都市青羊区光华东三路489号西环广场2栋
厂址:成都市金堂淮口工业区节能大道(国染大道)
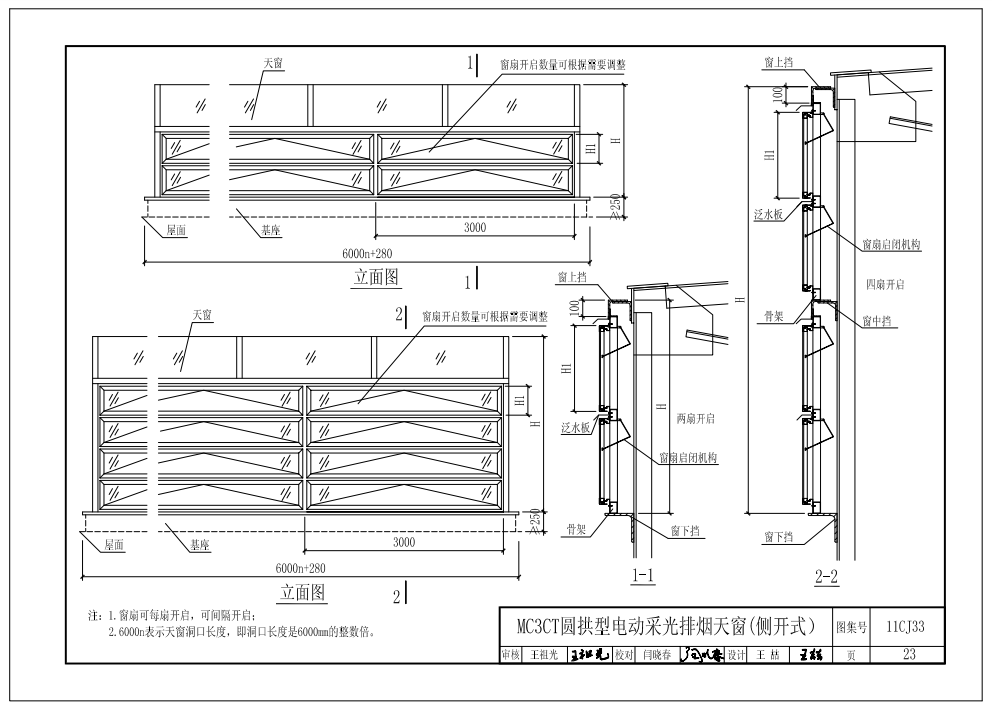
C3CT与MC3CT侧开式圆拱形电动采光排烟天窗比较分析
侧开式圆拱形电动采光排烟天窗具有C3CT与MC3CT两种窗型,二者在结构、规格尺寸与性能上有所差异,下面将为您比较分析。
1. 规格尺寸对比
根据11CJ33图集,C3CT与MC3CT侧开式圆拱形电动采光排烟天窗的规格尺寸存在一定差异。C3CT天窗的洞口宽度通常为2000-6000mm,长度可根据需求按6000mm的整数倍调整(如6000×n),窗洞高度为550-880mm,窗体高度为1100-1714mm。
而MC3CT天窗的洞口宽度为3000-6000mm,窗洞高度为1200-3000mm,窗体高度为1830-4350mm,窗体高度更高,体积更大。
2. 通风性能对比
MC3CT天窗的设计采用双层或四层窗扇结构,通过多组窗扇的联动开启,有效通风面积显著增加,适合需要高强度通风换气的工业建筑。相比之下,C3CT仅配置单层窗扇,能满足常规通风需求。从11CJ33通风采光天窗图集来看,C3CT圆拱型天窗的有效开口面积为3.78-7.29㎡/樘,MC3CT圆拱型天窗的有效开口面积为9.72-25.92㎡/樘。
综上,两者在规格与功能上各有侧重,用户需根据实际需求选择。若追求高效通风盖,MC3CT侧开式圆拱形电动采光排烟天窗更为合适。
热点产品 / Hot Products
“推荐阅读”
- 2025-04-05侧开型通风天窗如何为厂房 “排忧解难”
- 2025-03-31圆拱型电动采光排烟天窗的独特结构设计
- 2025-03-31探究一字型连体式电动采光排烟天窗的采光性能






川公网安备 51010502010565号
扫一扫更精彩
扫一扫

