四川麦克威通风设备有限公司
咨询热线:028-82630900
手机:13881905158
传真:028-82630433
邮箱:mcwell@qq.com
办公:成都市青羊区光华东三路489号西环广场2栋
厂址:成都市金堂淮口工业区节能大道(国染大道)
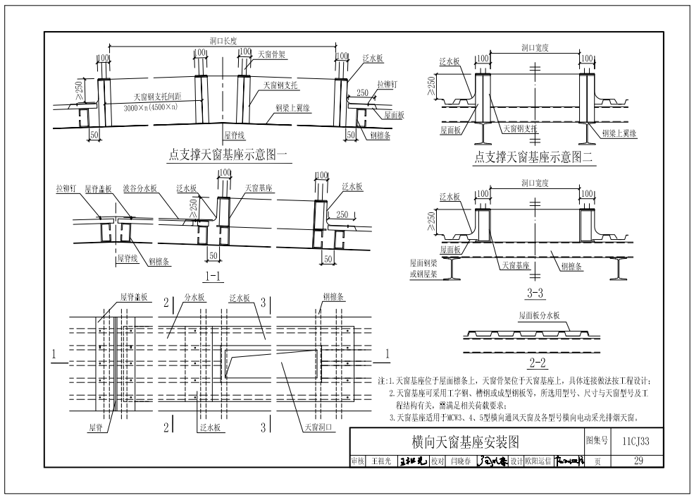
通风采光天窗11cj33图解基座安装方案
基座是连接通风采光天窗与屋面的构件,其直接安装在屋面,安装的好坏将直接影响天窗的密封性、防水性。本文将根据通风采光天窗11cj33图解基座安装方案。
天窗基座安装在屋面钢梁或檩条上,而骨架则直接安装在基座上。天窗基座一般采用工字钢、槽钢、成型钢板等材料制作,而材料的型号、尺寸则与天窗型号及工程结构有关系,必须满足项目所需荷载要求,保证结构安全性。
通风采光天窗11cj33图解第26页适合MCW1型薄型通风天窗和MCW2型薄型通风天窗,其横向和纵向基座平面布置图、基座安装剖面图如下:
MCW4型通风天窗(压杆式)、MCW5型通风天窗(暗扣式)以及电动采光排烟天窗基座安装图如下:
纵向天窗和横向天窗基座安装示意图如下:
热点产品 / Hot Products
“推荐阅读”
- 2024-05-2509j621-2电动采光排烟天窗图集侧开型天窗说明
- 2024-05-27【建筑图集】09j621-2电动采光排烟天窗图集免费下载
- 2024-05-2811cj33通风采光天窗图集之结构荷载设计






川公网安备 51010502010565号
扫一扫更精彩
扫一扫

