云南麦克威是国标图集18J621-3《通风天窗》参编单位,18J621-3型通风天窗分为开敞式屋脊天窗和启闭式屋脊天窗,其中18J621-3型通风天窗(启闭式屋脊天窗)适用范围广泛,下面云南麦克威天窗小编简单介绍下3型通风天窗。
一、云南3型通风天窗(启闭式屋脊天窗)防水方式
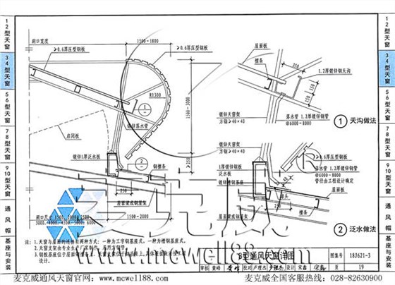
云南3型通风天窗(启闭式屋脊天窗)采用麦克威的全结构防水,在板材节点部位采用专用扣件进行扣合处理,防水使用寿命同建筑屋面外板相同。18J621-3型通风天窗(启闭式屋脊天窗)就不再采用硅胶、胶带填缝堵漏,预防了硅胶、胶带老化开裂造成的漏水隐患。
三、云南3型通风天窗(启闭式屋脊天窗)喉口大小
云南3型通风天窗(启闭式屋脊天窗)喉口宽度:1500mm、2000mm、2500mm、3000mm、4000mm、4500mm、5000mm、6000mm等;
云南3型通风天窗(启闭式屋脊天窗)喉口长度:3000*n、4000*n(用于压型钢板或者现浇混泥土屋面)、6000*n(用于预应力钢筋混泥土屋面板屋面);
云南3型通风天窗(启闭式屋脊天窗)天窗对应高度:1500mm、2000mm、2500mm、3000mm、4000mm、4500mm、5000mm、6000mm等;
云南3型通风天窗(启闭式屋脊天窗)代号有:18J621-3B-1530n(1540n、1560n)、18J621-3B-2030n(2040n、2060n)、18J621-3B-2530n(2540n、2560n)、18J621-3B-3030n(3040n、3060n)、18J621-3B-4030n(4040n、4060n)、18J621-3B-4530n(4540n、4560n)、18J621-3B-5030n(5040n、5060n)、18J621-3B-6030n(6040n、6060n)。另外长度,宽度,高度可根据图集、甲方及设计要求定制生产。
二、云南3型通风天窗(启闭式屋脊天窗)
云南3型通风天窗(启闭式屋脊天窗)安装可以屋脊安装或者横向安装(顺坡安装),一般由天窗架、外围护板(挡风板)、挡雨板、FRP采光板、排水沟槽、阀板、泛水板、启闭机构等部分组成。阀板开关采用电动或手动控制,其骨架由型材焊接,防雨板采用彩色钢板或玻璃纤维聚酯采光板(FRP)制作。流线型构造,体积较大,通风量较大。18J621-3型通风天窗(启闭式屋脊天窗)对应11CJ33《通风采光天窗》图集的MCW4型天窗;18J621-3《通风天窗》图集的3型通风天窗。
通风天窗生产厂家——麦克威天窗是18J621-3《通风天窗》图集参编单位,15年的研发推广,使得麦克威具备了雄厚的实力称霸西南,傲视全国,选择18J621-3图集产品请认准麦克威,想了解更多请访问麦克威天窗网站(www.mcwell88.com)或者拨打麦克威客服热线:028-82630900。

MCW5型通风天窗(暗扣式)
MCW7型通风天窗(箱型骨架式)
C1XT三角形电动采光排烟天窗(下开式)
TC5型流线型通风天窗